Monthly Archives: 6月 2015
女性が輝くと家族がHAPPYになる!?
ここ数年人気急上昇の自然素材住宅。
自然や健康への関心だけでなく、「日常を楽しむ」ということの大切さが見直されています。
そんなライフスタイルで重要になってくるのが、女性の目線。
なんといっても、住宅というステージで主役を務めるのは、ほとんどが女性だからです。
女性が輝ける家づくり/家選びができれば、くらしは断然楽しくなります。
専業主婦率が少しずつ高くなっているのも、素敵な住まいが増えているからかもしれません。
日常の充実の延長線で、料理研究家やガーデナーが注目を浴びるようになってきましたよね。
そういうカリスマ主婦たちの舞台になっているのが、暮らしやすくスタイルのある家なんです。
居心地の良いキッチンのしつらえ方
たとえばキッチンの配置。
対面式やアイランドなどのアクティブスタイルは定番になってきましたが、実際にキッチンに立った時に見える景色はどうでしょう?
先にご紹介したアーバンナチュール玉川学園では、キッチンからリビング全体が見通せるだけでなく、ひな壇の上からいちばん素敵な景色が見えるように設計されています。
プロの料理人のように、何時間もキッチンに立っていたとしても、ストレスなく過ごせる空間です。
男性にとっては「心地よい労働環境」が整えられているのと同じですから、より生産性が高くなる=日常生活のクオリティが上がるということになります。
quality of life → QOL が実現できると、その先に新しい可能性が広がり、人生はどんどん豊かになっていきます。
キッチンやリビングは、女性目線の心地よさが加わることで何倍にも「広く」なるのです。
新しいアーバンナチュールのLDK
9月ごろ完成予定の横浜市青葉区恩田町の自然素材建売住宅も、そんな女性目線を大事にした広々キッチンの住まい。
床材や細かなディテールにもたくさんの工夫が予定されています。
もちろんすべて込みの価格設定ですが、1棟ごとのオリジナル企画なので、最終的にどうなるかは出来上がってのお楽しみ。
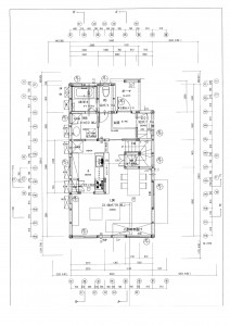
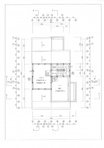
間取りは前回もおみせしましたが、LDKはこちら。
**********
注文住宅にも建売住宅にも同じこだわり
友和ホーム TEL 042-788-2400
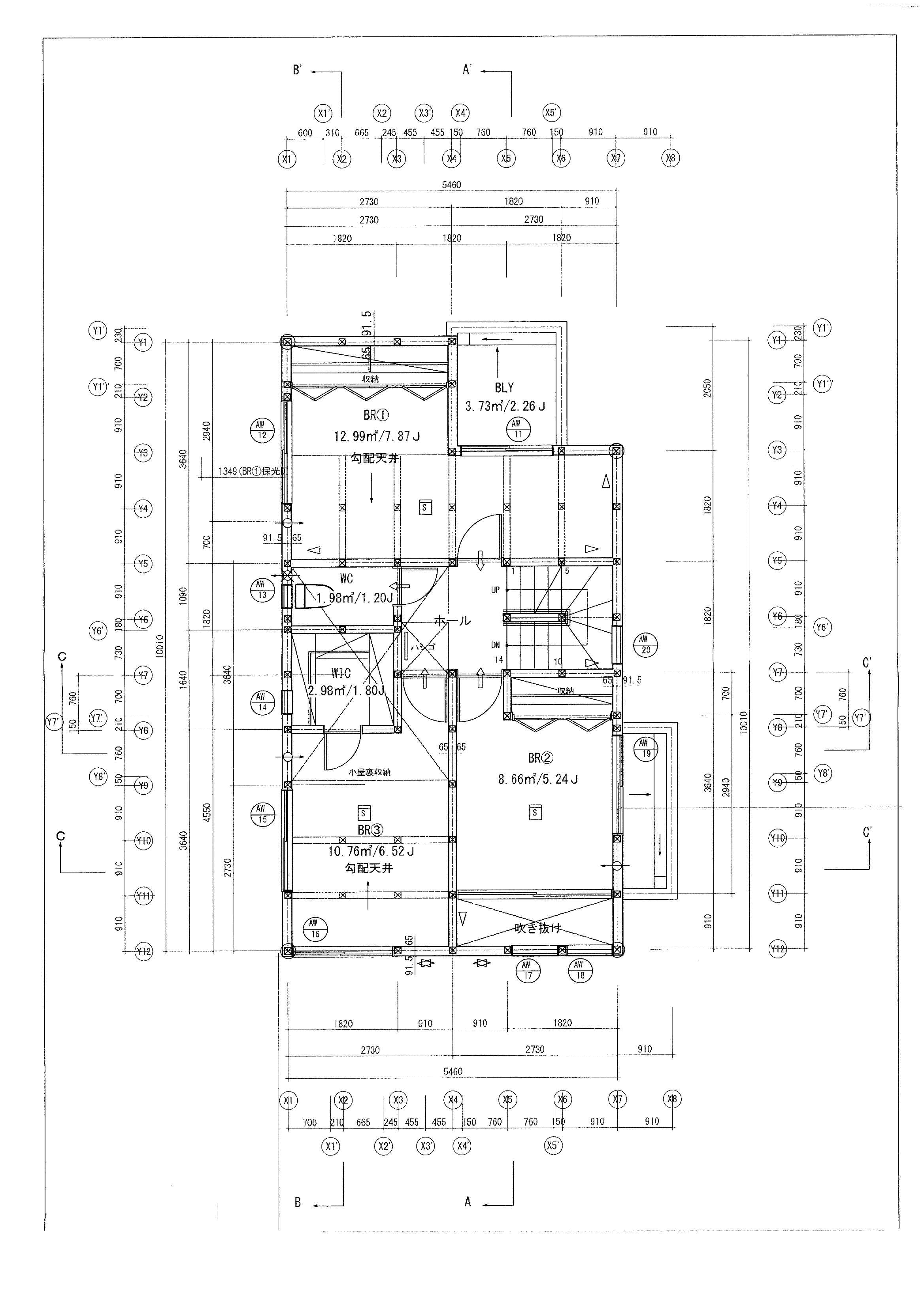
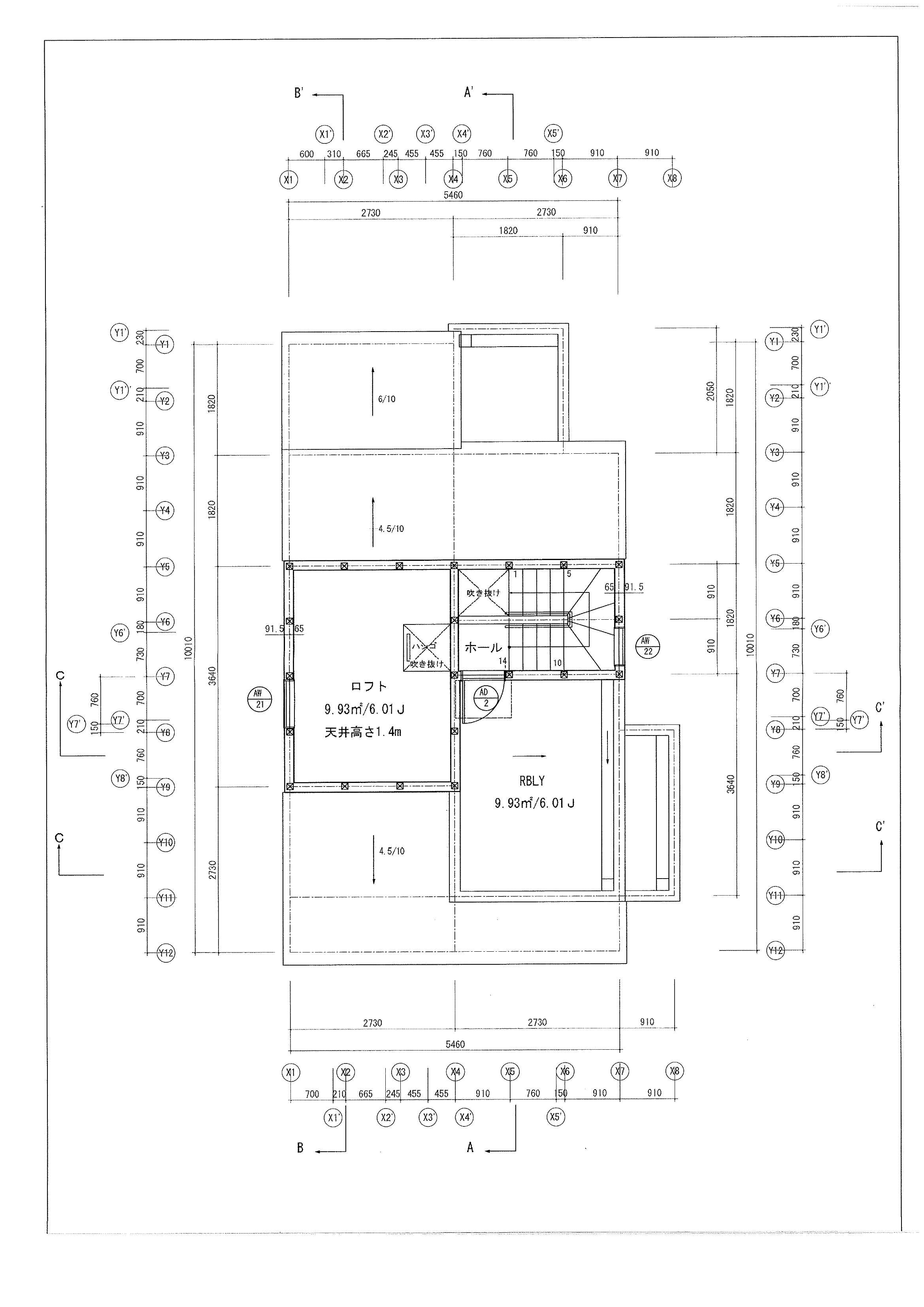
弊社アーバンナチュール横浜・青葉はこんな間取りになります!
屋上スカイバルコニーロフト付大型3LDKになります。
内装の仕上げに関してすべては決定はしておりませんが、
無垢材の床は今回は色が濃い目のアカシアのフローリングを貼り、
壁は漆喰珪藻土のテラデコールでの仕上げにしようと思ってます。
玄関ホールを広めにしました!
家に入った瞬間からすこし贅沢で豪華な感じになると思います。
全体的にはアンティークな照明器具を設置してみようと思ってます。
ケヤキの一枚板もありますので今回もキッチンカウンターは贅沢に一枚板を設置します!
7月から建築が始まります!
照明器具、ステンドグラス、アンティーク金具、ペーパーホルダー、ロフトはしごなど
新作を使ってみようと思ってます!楽しみです!








