パッシブナチュール鶴川・真光寺 檜の家 ※成約済
- 断熱等性能等級5相当
- 一次エネルギー消費量 等級6相当
物件所在地
町田市真光寺町1039-20
第25UDI1K建00592号
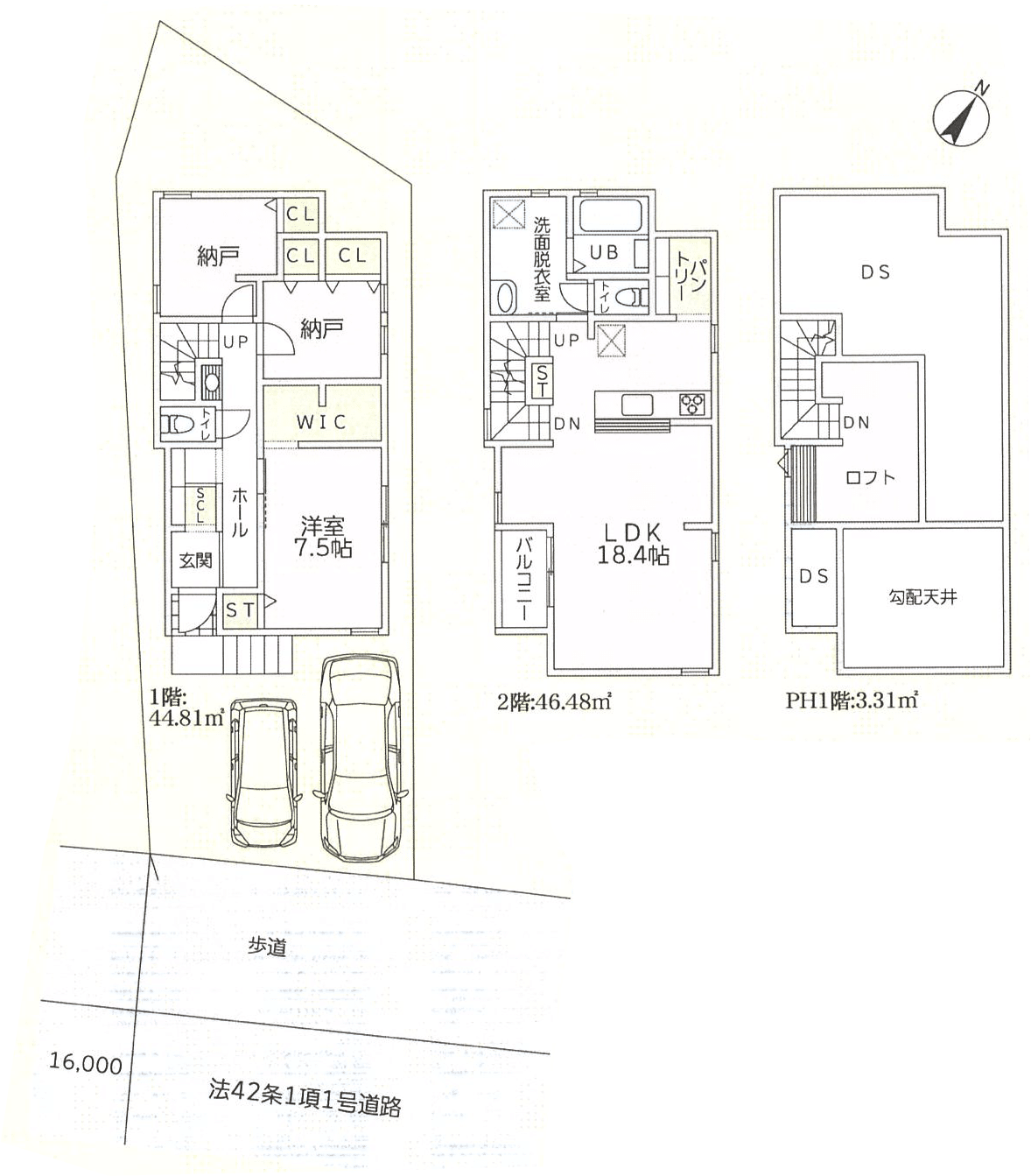
- 地積 実測103.48㎡(31.30坪)
- 建物面積 94.60㎡(28.61坪)
- 木造スレート葺2階建
- 用途地域 第2種中高層住居専用地域
- 建ぺい率 50%
- 容積率 150%
- 公営水道・本下水・東京電力・東京ガス
おすすめポイント
- 小田急線鶴川駅バス7分 / 真光寺中学校入口バス停徒歩3分
- 日当り・住環境良好!
- 固定階段付ロフト・閑静住宅街!
- バルコニーあり!
- 省エネ+自然素材の家
- 断熱等性能等級5相当
- 一次エネルギー消費量等級6相当
- 熱交換換気扇設置(LDKのみ)
- 2階リビング勾配天井・パイン無垢板張り仕上げ
- 発泡ウレタン断熱材
- 室内すべて珪藻土塗り仕上げ(調湿・消臭・抗菌の壁)
- 厚さ15ミリ・国産檜の無垢フローリング
- 複層ガラス
- 外壁厚さ18ミリ・ラップサイディング仕上げ
- 食洗器付システムキッチン・IHヒーター
- 乾燥機・暖房付ユニットバス
- 全室照明器具付 オーダーカーテン付(生地はお客様に選んで頂きます)
